1060 Fox LaneSugar Grove, OH 43155




Mortgage Calculator
Monthly Payment (Est.)
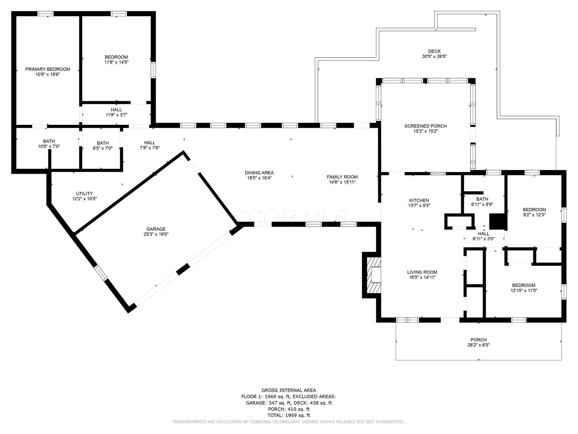
$2,737Agent/owner; Darling cabin that has been completely updated! New or newer: Amish kitchen cabinets, wood ceilings and beams, LVT flooring throughout, new windows, flooring, lighting, bathrooms, roof, electric, 1 new furnace and 2 new air conditioners (one furnace is older), new hot water tanks, pressure tank, etc! This charming home is on flat land and has a horseshoe drive. Very quiet, wooded lot. Hide A Way Hills is a gated community about 1 hour southeast of Columbus. (You MUST be called into the gate). Amenities include: 24/7 security, lending library, golf course, clubhouse, beach, disc golf, organic garden, ATV trail, shooting range, Lodge, pool, tennis and pickleball, workout facility! AGENT/OWNER
| 3 hours ago | Status changed to Active | |
| 3 hours ago | Listing updated with changes from the MLS® | |
| 18 hours ago | Listing first seen on site |
Listing information is provided by Participants of the Columbus and Central Ohio MLS. IDX information is provided exclusively for personal, non-commercial use, and may not be used for any purpose other than to identify prospective properties consumers may be interested in purchasing. Information is deemed reliable but not guaranteed. Copyright 2026, Columbus and Central Ohio MLS.
Last checked: 2026-03-20 10:18 AM UTC
