2004 Ford RoadDelaware, OH 43015




Mortgage Calculator
Monthly Payment (Est.)
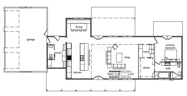
$6,844An opportunity to build a custom high-performance home on 2.2 scenic acres on quiet Ford Road in Delaware. This 5-bedroom, 4.5-bath residence blends modern farmhouse character with intentional design, offering expansive living spaces in a peaceful country setting just minutes from Dublin, Powell, and downtown Delaware. At the heart of the home, a dramatic two-story great room creates an open, light-filled gathering space with soaring ceilings and a full wall of windows. The layout is designed for both everyday comfort and effortless entertaining, with seamless flow from the kitchen to dining and outdoor living areas. The first-floor primary suite provides privacy and convenience, while additional bedrooms and flexible spaces allow room for guests, hobbies, or multi-generational living. Thoughtful details like a spacious mudroom, built in shelving, and functional storage make daily life feel organized and easy. Built using high-performance construction principles, this home prioritizes durability, energy efficiency, indoor air quality, and long-term comfort. A carefully engineered building envelope, advanced insulation strategies, and right-sized mechanical systems work together to create a quieter, healthier, and more efficient living environment—designed to perform better in every season. This is a to-be-built custom home with an estimated 6-9 month build timeline from contract, offering buyers the opportunity to personalize finishes and tailor select design elements to fit their style and needs. Architecturally striking. Intentionally designed. Built different.
| 3 hours ago | Listing first seen on site | |
| 3 hours ago | Listing updated with changes from the MLS® |
Listing information is provided by Participants of the Columbus and Central Ohio MLS. IDX information is provided exclusively for personal, non-commercial use, and may not be used for any purpose other than to identify prospective properties consumers may be interested in purchasing. Information is deemed reliable but not guaranteed. Copyright 2026, Columbus and Central Ohio MLS.
Last checked: 2026-02-05 10:55 PM UTC

Did you know? You can invite friends and family to your search. They can join your search, rate and discuss listings with you.