2000 Ford RoadDelaware, OH 43015




Mortgage Calculator
Monthly Payment (Est.)
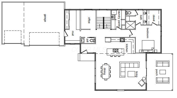
$6,387An opportunity to build a custom high-performance home on 2.2 scenic acres on quiet Ford Road in Delaware. This thoughtfully designed 4,610 square foot residence offers 5 bedrooms, 4.5 baths, a main-level office, upstairs loft, fully finished basement, and a 3-car garage—all in a peaceful country setting just minutes from Dublin, Powell, and downtown Delaware. Designed to maximize natural light, expansive windows and intentional sightlines create bright, welcoming living spaces throughout. The main level offers an open-concept layout ideal for entertaining, along with a dedicated office for work-from-home flexibility. Upstairs, a spacious loft provides additional living space for gathering, studying, or relaxing. The fully finished basement with egress window adds valuable square footage and versatility—perfect for guests, recreation, or multi-generational living. Function meets organization with abundant storage throughout, including a large mudroom, walk-in pantry, and integrated laundry area designed for real life. Built using high-performance construction principles, this home prioritizes durability, energy efficiency, indoor air quality, and year-round comfort. A carefully engineered building envelope, advanced insulation strategies, and right-sized mechanical systems work together to create a quieter, healthier, and more efficient living environment. Topped with a standing seam metal roof backed by a double lifetime warranty, this home is designed for long-term resilience and low maintenance. This is a to-be-built custom home with an estimated 6-9 month build timeline from contract, allowing buyers to personalize finishes and select design elements. Architecturally clean. Intentionally designed. Built different.
| 3 hours ago | Listing first seen on site | |
| 4 hours ago | Listing updated with changes from the MLS® |
Listing information is provided by Participants of the Columbus and Central Ohio MLS. IDX information is provided exclusively for personal, non-commercial use, and may not be used for any purpose other than to identify prospective properties consumers may be interested in purchasing. Information is deemed reliable but not guaranteed. Copyright 2026, Columbus and Central Ohio MLS.
Last checked: 2026-02-05 10:55 PM UTC

Did you know? You can invite friends and family to your search. They can join your search, rate and discuss listings with you.